21時からのアクティビティ

30代のサラリーマンのブログ。好きなモノ、インテリアを中心に日々の生活を綴っています。

2020-01-19から1日間の記事一覧

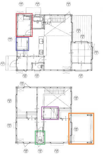
新築するにあたってやって良かったこと その2

こんばんは! 以前記事にした「新築するにあたってやって良かったこと」で一部紹介漏れがあったので改めて記事にします。 前回の記事はこちら punkyman.hatenablog.com 漏れていたのは赤で囲んだ部分です。 赤で囲んだ部分は脱衣所兼洗濯室になります。 ゼロ…